土地 宮崎市船塚2
《敷地約516㎡🌿ゆとりある広さの宮崎市船塚エリアの売地》
《建築条件なし🏡落ち着いた住宅環境で住まいづくりを検討できる土地》
🌿おすすめポイント
・敷地面積約516㎡の広々とした土地
・建築条件なしのため自由な住まいづくりが可能🏡
・周囲の視線が届きにくい配置の区画
・宮崎市中心部に近い船塚エリア
・落ち着いた住宅環境
・バス停「船塚3丁目」徒歩圏🚌
・住宅用地として検討しやすい土地
・土地の広さを活かしたプランも検討可能
✨物件詳細
宮崎市船塚2丁目に位置する売地です🌿
敷地面積は約516㎡あり、
広さを活かした土地利用を検討できる区画です。
住宅用地としての利用のほか、
敷地のゆとりを活かした住まいづくりなど
さまざまなプランを検討することができます。
建築条件がないため、
お好きなハウスメーカーや工務店で
住まいづくりを進めることが可能です🏡
周辺は住宅地が広がる落ち着いた環境で、
宮崎市中心部へのアクセスもしやすいエリアです。
また、バス停「船塚3丁目」まで徒歩圏の立地で
通勤や通学など移動にも利用しやすい環境です🚌
宮崎市内で広めの土地をお探しの方や
ゆとりある敷地で住まいづくりを検討されている方にも
おすすめの売地です。
現地のご案内や詳細についても
お気軽にお問い合わせください😊
📍物件概要
・所在地:宮崎市船塚2丁目
・土地面積:約516㎡
・土地権利:所有権
・用途地域:第二種住居地域
・建ぺい率:60%
・容積率:200%
・接道:東側道路
・現況:古家あり
🌳周辺エリア
船塚エリアは宮崎市内でも
住宅地として知られる落ち着いた地域です🏡
市街地へのアクセスもしやすく、
生活環境を重視して土地を探している方にも
検討しやすいエリアとなっています。
支払例
※宮崎銀行/借入金4,200万円、返済期間35年、金利0.950%(変動金利型)の場合
※審査により金利は変わる可能性があります。
物件概要
- 交通
-
バス停船塚3丁目 まで 徒歩2分
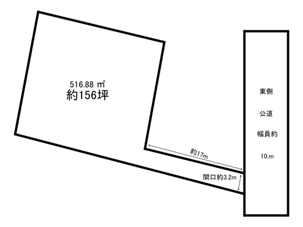
- 接道状況
- 東側 公道10m 間口約3.2m
- 土地面積
- 516.88㎡ (156.35坪)
- 建ぺい率
- 60%
- 容積率
- 200%
- 土地権利
- 所有権
- セットバック
- 無し
- 小学校区
- 中学校区
- 私道負担
- なし
- 建築条件
- なし
- 地目
- 宅地
- 現況
- 上物有
- 引渡時期
- 相談
- 上水道
- 下水道
- ガス
- 都市計画
- 用途地域
- 2種住居
- 設備・条件
- 備考
- 取引態様
- 仲介
その他周辺物件
*35年ローン / 金利0.950%の場合
※審査により金利は変わる可能性があります。
詳しくは詳細ページをご覧ください。


