中古一戸建て 宮崎市佐土原町下田島
《約144坪のゆとりある敷地に建つ開放的な平屋住宅》
《駅徒歩圏内×角地で利便性と住みやすさを兼ね備えた一邸》
📍所在地・アクセス
・宮崎県宮崎市佐土原町下田島
・JR日豊本線「佐土原」駅 徒歩8分
・宮崎交通バス 徒歩圏内
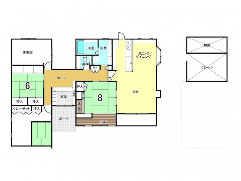
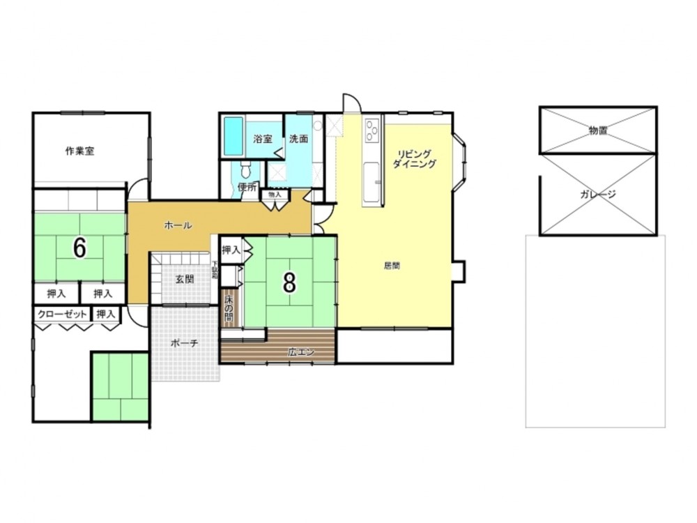
🏠建物・土地情報
・土地面積:477.26㎡(約144.37坪)
・建物面積:158.22㎡(約47.86坪)
・間取り:4LDK
・木造平屋建て
・築年月:1992年4月
🌿住空間・特徴
・ゆとりある平屋住宅で快適な生活動線
・収納スペース充実
・エアコン複数台設置
・暖炉設備ありで趣のある空間
🚗駐車スペース
・駐車場あり
・付属建物(約39.75㎡)の車庫兼倉庫付き
🏙️立地・周辺環境
・駅徒歩圏内で通勤・通学に便利
・落ち着いた住宅環境
・敷地が広く、庭や家庭菜園も楽しめます
🏫教育環境
・広瀬小学校まで約1,431m
・広瀬中学校まで約1,008m
🚧接道・法規
・東側・南側の角地
・建ぺい率60%/容積率200%
・用途地域:工業地域
・平坦地で使いやすい土地形状
佐土原町エリアで人気の平屋住宅が登場✨
なんと約144坪の広々敷地で、ゆったりとした暮らしが実現できます😊
駅徒歩8分の立地ながら、落ち着いた住環境も魅力!
暖炉付きのこだわり住宅で、他にはない暮らしを楽しめます🔥
宮崎市不動産で戸建てをお探しの方におすすめ!
【宮崎市不動産】【佐土原中古住宅】【宮崎市平屋】で検索中の方はぜひご検討ください🏡
検索キーワード
宮崎市不動産/宮崎市中古戸建/佐土原中古住宅/宮崎市平屋/広い土地住宅
問い合わせ案内
📞内覧予約・詳細はお気軽にお問い合わせください!
📩資料請求も受付中です!
支払例
※宮崎銀行/借入金2,388万円、返済期間35年、金利0.950%(変動金利型)の場合
※審査により金利は変わる可能性があります。
物件概要
- 交通
-
JR日豊本線 佐土原駅 まで 徒歩8分
宮﨑交通バス 7分
- 接道状況
-
東側 公道4.5m 間口約17m
南側 公道4.5m 間口約27m - 土地面積
- 実測 477.26㎡ (144.37坪)
- 建物面積
- 158.22㎡ (47.86坪)
- 築年数
-
1992年
(平成4)
4月
築34年 - 建ぺい率
- 60%
- 容積率
- 200%
- 土地権利
- 所有権
- 構造および階数
- 木造 地上1階建
- 小学校区
- 広瀬 (1431m)
- 中学校区
- 広瀬 (1008m)
- 私道負担
- 無
- 地目
- 宅地
- 現況
- 空
- 引渡時期
- 即時
- 駐車場
- 有
- 上水道
- 公共
- 下水道
- 公共
- ガス
- 都市ガス
- 都市計画
- 市街化区域
- 用途地域
- 工業
- 設備・条件
- オール電化、暖炉設備有り 付属建物で39.75㎡の車庫 兼倉庫有り
- 備考
- 取引態様
- 仲介
その他周辺物件
*35年ローン / 金利0.950%の場合
※審査により金利は変わる可能性があります。
詳しくは詳細ページをご覧ください。


