土地 宮崎市小松
《周辺施設充実!買物・医療・教育がそろう安心の小松エリア》
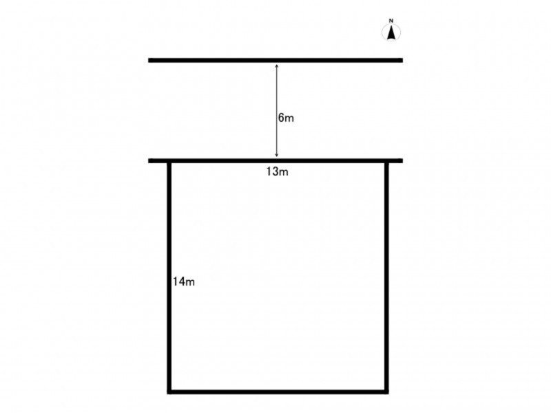
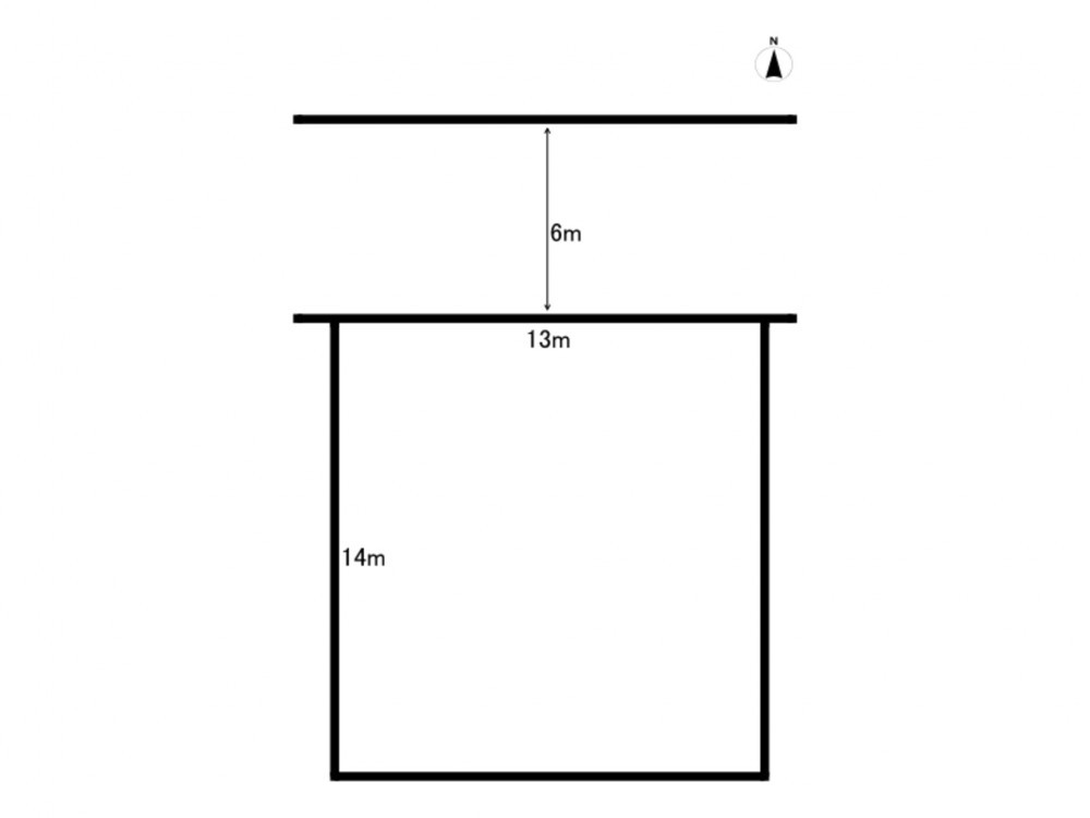
《前面道路6mで車の出入りもスムーズ!子育て世代に人気の住環境》
・所在地・アクセス
宮崎市大字小松エリア📍
宮崎交通「小松」バス停まで徒歩約4分で、市街地や主要施設へのアクセスも良好です。
・周辺環境
アタックス・ダイレックス・コスモスなど商業施設が徒歩圏内🛒
潤和会記念病院(約500m)、藤木病院など医療施設も近く、安心して暮らせる環境です。
・教育環境
小松台小学校・生目中学校区🏫
通学路は平坦で、子どもたちにも安心の通学環境。公園(下小松街区公園)もすぐそばにあります🌳
・土地情報
地目:宅地 用途地域:第1種住居地域
建ぺい率60%・容積率200%で、戸建住宅や二世帯住宅にも対応可能。
接道は幅6mの公道に面し、駐車計画も立てやすい整形地です🚗
・生活利便性
コンビニ・スーパー・ドラッグストアがすべて徒歩圏内で、毎日の買い物もスムーズ♪
落ち着いた住宅街ながら、交通アクセス・生活利便性のバランスが取れた人気エリアです✨
宮崎市小松エリアで土地をお探しの方におすすめ🌿
周辺には商業施設や医療機関がそろい、生活利便性抜群!
前面道路6mのゆとりある区画で、駐車スペースや庭づくりも思いのまま。
穏やかな住宅地で子育てにも人気のエリアです✨
宮崎市の土地・不動産探しは地域密着の情報で安心してスタート🏡
支払例
※宮崎銀行/借入金1,100万円、返済期間35年、金利0.950%(変動金利型)の場合
※審査により金利は変わる可能性があります。
物件概要
- 交通
-
バス停小松 まで 徒歩4分
- 土地面積
- 184.88㎡ (55.92坪)
- 建ぺい率
- 容積率
- 土地権利
- 所有権
- セットバック
- 無し
- 小学校区
- 小松台 (1180m)
- 中学校区
- 生目 (3700m)
- 私道負担
- 建築条件
- なし
- 地目
- 宅地
- 現況
- 引渡時期
- 上水道
- 公共
- 下水道
- 公共
- ガス
- 都市計画
- 用途地域
- 1種住居
- 設備・条件
- 備考
- 取引態様
- 仲介
その他周辺物件
*35年ローン / 金利0.950%の場合
※審査により金利は変わる可能性があります。
詳しくは詳細ページをご覧ください。


